Описание
Характеристики
Отзывы
Описание
Дизельный генератор TDo 330MC серии TSS Prof производится на базе линейки проверенных и надёжных двигателей марки Doosan и генераторов Mecc Alte. Дизельный генератор Doosan мощностью 240 кВт является оптимальным решением для заказчиков при построении систем основного или резервного электроснабжения, что позволяет рекомендовать его для предприятий агропромышленного комплекса (птицефабрики, фермерские хозяйства), стадионов и спортивных объектов, других отраслей. Гарантия - 36 месяцев (или 2000 моточасов, в зависимости от того, что наступит раньше).
Характеристики
Артикул
017569
Мощность номинальная, кВт
240
Мощность максимальная, кВт
264
Мощность номинальная, кВА
300
Мощность максимальная, кВА
330
Напряжение (В)
400/230
Количество фаз
3
Номинальный ток (А)
434
Точность регулировки напряжения (± %)
1
Регулятор напряжения
DSR
Частота, Гц
50
Напряжение бортового электрооборудования, (В)
24
Регулятор оборотов
электронный
Рабочий объём двигателя (л)
11,051
Система впуска воздуха
с турбонаддувом и промежуточным охлаждением воздуха
Расположение цилиндров
рядное
Количество цилиндров
6
Вид топлива
дизель
Уровень шума (dB/7м)
92
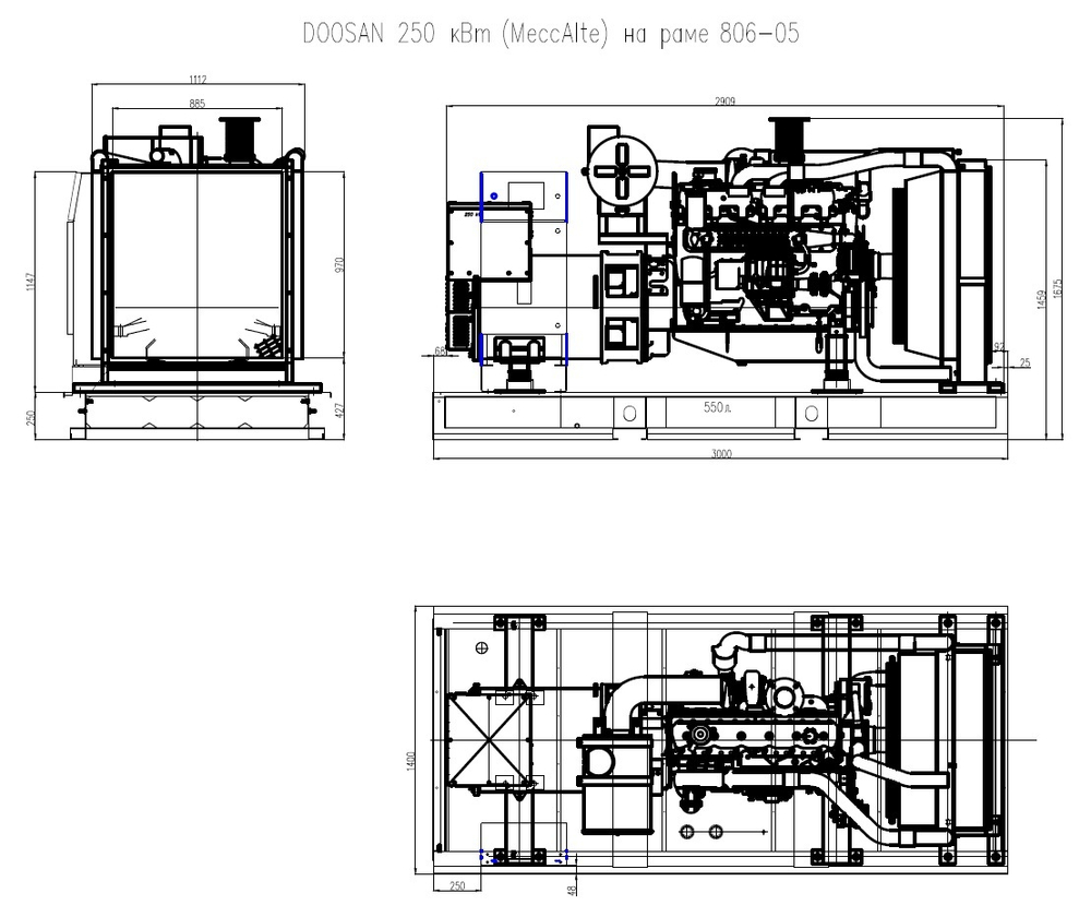
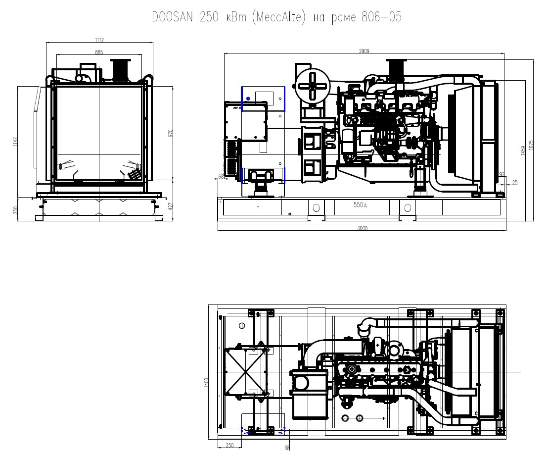
Объём топливного бака (л)
550
Объём системы охлаждения (л)
51
Система аварийной остановки
да
Расход топлива при 50% мощности л/ч
28
Расход топлива при 75% мощности л/ч
47
Расход топлива при 100% мощности л/ч
63.1
Автономная работа на 75% нагрузки без дозаправ (ч)
11.7
Генератор
Mecc Alte ECO38-2L SAE 1/14 (240 кВт),
Mecc Alte ECO38-1L/4 SAE 1/14 (240 кВт)
Глушитель
промышленный
Коэффициент мощности
0,8,
0.8
Исполнение
Открытое
Двигатель
Doosan P126TI-II,
Hyundai Doosan P126TI-II
Рекомендуемый тип масла
SAE 15W40/10W40, API CH-4
Установленный аккумулятор Ah/V
2*132/12
Серия
TSS Prof,
TSS Premium
Степень автоматизации
1 (ручной запуск)
Производитель двигателя
Doosan,
Hyundai Doosan
Контроллер (Марка, модель)
Контроллер Lovato RGK600
Замок горловины бака
да
Датчик уровня топлива
да
Ресурс работы до кап. ремонта (ч)
40000
Отключатель АКБ
да
Топливный сепаратор
нет
Гарантия, срок (мес)
36,
36 месяцев/2000 моточасов
Система возбуждения
MAUX
Степень изоляции
H
Ёмкость масляной системы (л)
23
Экологический класс
Tier 1
КПД генератора, %
93,7
Комплектация
руководство, гарантийный талон,
глушитель, топливный бак, АКБ, ЩУ с цифровой панелью, станция заправлена маслом и ОЖ
Масса, кг
1960
Вес брутто (кг)
1970
Длина (мм)
3000
Ширина (мм)
1400
Высота (мм)
1675
Высота рамы (мм)
250
Габаритные размеры (Д;Ш;В; мм)
3000х1400х1675
Все характеристики
Отзывы
Отзывов еще никто не оставлял
Ранее просмотренные
